Special Plans
Separatable Project Tasks

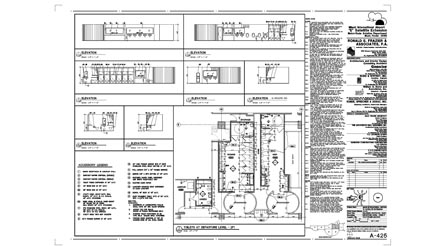
New Airport Terminal restroom details.

Miller Enterprises was also awarded the nonglamorous yet important task of designing all of the restrooms in the the new Miami airport terminal. Keeping design elements consistent and double checking code requirements, we developed a system which allowed easy design changes. Again these were efficiently x-ref linked into the overall floor plans of the project.

Airport Building Roof Plan.

We also produced the roof plan drawings of this complex building. Again, while being far from the physical site.